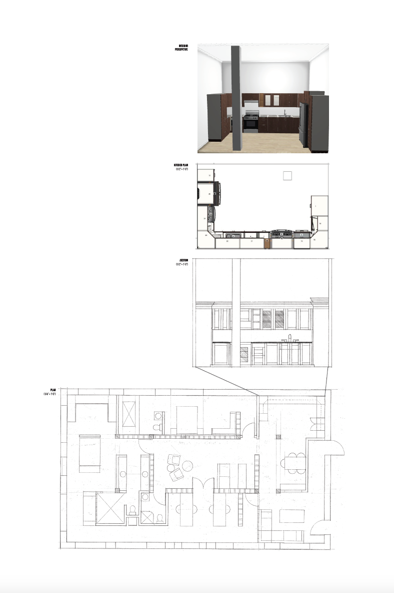
The following entries feature student artifacts that showcase their final presentation board for the kitchen charette. This project was an excursion during the semester-long loft project to detail aspects of how a kitchen can be layout.
2nd Year Loft Renovation. 2002
Program brief for the Lexington kitchen charette
Student 1




















