Skip to content
Atelier de Hahn
The Architecture of a Global Traveler
Menu
Profile
Blogs
News
Academics
Academic Years
Undergraduate Design Studio, Fall 2025/Spring 2026
Allison
Kewen
Lucas
Nicole
Nora
Will
2nd Year Loft Renovation 2026
2nd Year Kitchen Charette 2026
Undergraduate Design Studio, Fall 2024/Spring 25
Undergraduate Design Studio, Fall 2022/Spring 23
2nd Year Loft Renovation. 2023
2nd Year Kitchen Charette. 2023
2nd Year Furniture Charette. 2023
Academic Year 2022-2023
Undergraduate Design Studio, Fall 2023/Spring 24
Academic Year 2023-2024
Academic Year 2021-2022
Undergraduate Design Studio, Fall 2021/Spring 22
2nd Year Loft Renovation. 2022
Graduate Design Studio Fall 2021
Academic Year 2020-2021
ARCH2015_F2020_Section exercise
ARCH2015-F2020_Section Exercise: Student 1
ARCH2015-F2020_Section Exercise: Student 2
ARCH2015_F2020_Section exercise: Student 3
ARCH2015_F2020_Wall House Project: Final Presentations
ARCH 2015_F2020_Wall House Projects: Student 1
ARCH 2015_F2020_Wall House Projects: Student 2
ARCH2015_F2020_Wall House Projects: Student 3
ARCH2015_F2020_Wall House Projects: Student 4
ARCH2015_F2020_Wall House Projects: Student 5
ARCH2015_F2020_Wall House Projects: Student 6
ARCH2015_F2020_Wall House Projects: Student 7
ARCH2015_F2020_Wall House Projects: Student 8
ARCH2015_F2020_Wall House Projects: Student 9
ARCH2015_F2020_Wall House Projects: Student 10
ARCH2015_F2020_Wall House Projects: Student 11
Academic Year 2016-2017
ARCH 2015/2016 Syllabus 1
ARCH 2015/2016 Syllabus 2
ARCH 2015: Fall 2016 Project1
ARCH 2015: Fall 2016 Project 2
ARCH 2016: Spring 2017 Project 1
ARCH2016_S2017_ Loft Renovation Project
ARCH 2016: Spring 2017 Project 2
ARCH 2016 Spring 2017 Field Trip
ARCH 3115/5134 History and Theory
Design Studios Artifacts
Lectures
Syllabi and projects
Off-campus Travel Programs
Seminars
Academic Year 2019-2020
ARCH2015_F2019_Wall House Projects
2nd Year Loft Renovation. 2020
ARCH2016_S2020_Loft Renovation
2nd Year Kitchen Charette. 2020
2nd Year Furniture Charette. 2020
Academic Year 2018-2019
Academic Year 2017-2018
ARCH2015_F2017_Analysis Project
ARCH2015_F2017_Boat Project
2nd Year House Project
2022 Europe Study Travel Abroad Program
2018 Riva San Vitale
2018 Hong Kong
2018 India
2017 Europe Study Travel Abroad Program
2017 Hong Kong
2016 Paris
Research
Unbuilt Architecture Projects/Competitions
Professional
African Cemetery, Lexington No. 2, KY
Contemporary Art Center, Lausanne
Highway restaurant competition
Springfield addition
ETH-campus extension
New York City renovation
Gallery
Student work
Portraits of a collection
Vintage American Pitchers
Architects
Adolf Loos, Vienna
Aldo Rossi, Milano
Andrea Palladio, Vicenza
Billie Tsien, Tod Williams Architects
Tod Williams and Billie Tsien: Asia Society Hong Kong Center
Billie Tsien and Tod Williams, Cranbrook
Billie Tsien and Tod Williams: Barnes Foundation, Philadelphia
Billie Tsien and Tod Williams: Princeton 1
Carlo Scarpa
Carlo Scarpa, Banca Popolare
Carlo Scarpa Castelvecchio
Carlo Scarpa, Cemetery
Carlo Scarpa Giardini
Carlo Scarpa Gypsotheca
Carlo Scarpa Querini Stampalia
Carlo Scarpa Olivetti Showroom
Carlo Scarpa, Venezuela Pavilion
Carlo Scarpa IAUV
Chris & Gantenbein Architects
Colin Fournier and Sir Peter Cook
David Chipperfield
David Chipperfield, Zurich
David Chipperfield, Venice
Enric Mérales Igualada Cemetery, Spain
Frank Gehry
Gerrit Rietveld
Gerrit Rietveld: Schroeder House
Giuseppe Terragni
Giuseppe Terragni, Como
Giuseppe Terragni, Milan
Hans Hollein, Vienna
John Hejduk, Prague
Josef Plecnik
Josef Plecnik, Church Prague
Josef Plecnik, Langer Villa
Josef Plecnik, Library
Josef Plecnik, Ljubjlana
Josef Plecnik, Prague castle
Josef Plecnik, Zacherl Haus
Le Corbusier
Le Corbusier, Heidi Weber
Le Corbusier, Immeuble Clarte
Le Corbusier, Sanskar Museum
Leonardo Ricci: Jesi Cemetery
Leonardo Savioli, Via Piagentina
Mies van der Rohe
Otto Wagner, Vienna
Peter Zumthor: Caplutta Sogn Benedetg
ProcessOffice
Castellan’s house in Vilnius, Lithuania
Latvian National Museum of Art: cupola staircase
Rem Koolhaas
Rem Koolhaas, Prada
Santiago Calatrava
Santiago Calatrava Library
Santiago Calatrava Stadelhofen
Vito Acconci, Graz
Zaha Hadid, Graz
Blog images
Breakfast menus
Cafe Do Cais, Porto, Portugal
Carlo Scarpa
Case Study presentations
Dieter Kienast charette
Dishes
Art
Aggie Zed
Dogs in art
Folk Art Snakes
Frescos by Teddy Aeby
Hands in Art
Mannequins
Portraits in art
Sculpture by Paul Day
Urban Posters
WPA Murals, Coit Tower, San Francisco, CA
Ex-Libris
Housing Lisbon: Social Complex in Alcabideche, Portugal
Mass modeling
Miniature buildings
National Memorial for Peace and Justice in Montgomery, Alabama
Paris Maps of Nicolas de Fer
Secondary School in Cugy, Switzerland
Shaker Village at Pleasant Hill, Kentucky
Sketching in the city
Sketches by Bill Blanski: Carlo Scarpa’s Bologna Gavina Showroom
Speicherstadt, Hamburg
Village of Corippo
Urban Parisian street art
Jewelry store
Air Conditioners
Alleys
Arcades
Arches
Awnings
Balconies
Balustrades
Bathrooms
Billboards
Benches
Bridges
Bridge, Venice, Italy
Wooden bridge at Newport, VA
Brise Soleil
Bus Shelter
Cafes pavilion, Merida, Spain
Cafe
Ceilings
Churches
Mario Botta -Church in Genestrerio, Tessin, Switzerland
Tita Carloni -Church in Rovio, Tessin, Switzerland
Raphael Moneo -Church in Donostia-San Sebastian, Basque Country, Spain
Church in Arantzazu, Basque Country, Spain
Sherwood Memorial Park, Salem, VA
Circulation
Alvaro Siza stairs
Rem Koolhaas stairs
Indian Steps
Conservation
Construction
Corners
Courtyards
Details
Jose Oubrerie -Miller House, Lexington, KY, USA
Dishes
Dogs
Dogs in India
Door Handles
Door Locks
Edges
Entrances
Facades
Street Facades
Faces
Food
Forcole
Fountains
Public fountain in Kaunas, Lithuania
Galleria Vittorio Emanuele II
Gateways
Gutters
Hinges
Meteorological Pavilion
Milano Centrale Train Station
Pavings
Porticos
Portraits in India
Robert Turner Home
Roofs
Sections
Staircases
Stair railings beginning
Stair railings middle
Stair railings top
Stepwells in India
Stepwell in Ahmedabad, India
Stepwell in New Delhi: Ugrasen Ki Baoli
Stepwell in Jodhpur, near Bal Samand Lake, India
Structures
Abutments
Beams
Brackets
Brackets
Cantilevers
Capitols
Columns
Column Base
Keystones
Timber framing/colombage
Walls
Train Station
Dubulti train station photographs
Train Couchette compartment
Tree Treatment
The Kentucky landscape
Trucks
Vernacular at Ballenberg
Urban artifacts
Urban Telephone Booths
Urban Kiosk
Urban signs
Windows
Windows in Art
Media
Videos
Hong Kong Shopping Mall
Food
Suggested menus
Breads
Breakfast
Chicken
Desserts
Fish
Quiches, Pies, and Tarts
Meats
Miscellaneous
Pasta
Pizza
Potato dishes
Rice
Salads
Salad suggestions
Sandwiches
Soups
Vegetables
Yogurts
Thoughts
Search for:
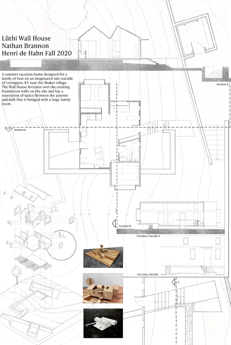
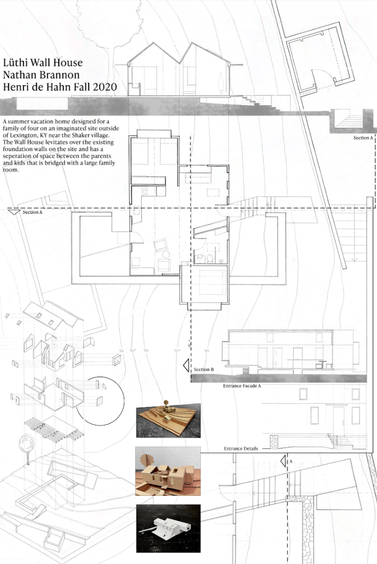
ARCH 2015_F2020_Wall House Projects: Student 2
Student 2