Project syllabus: ARCH2016_S2020_Loft Renovation
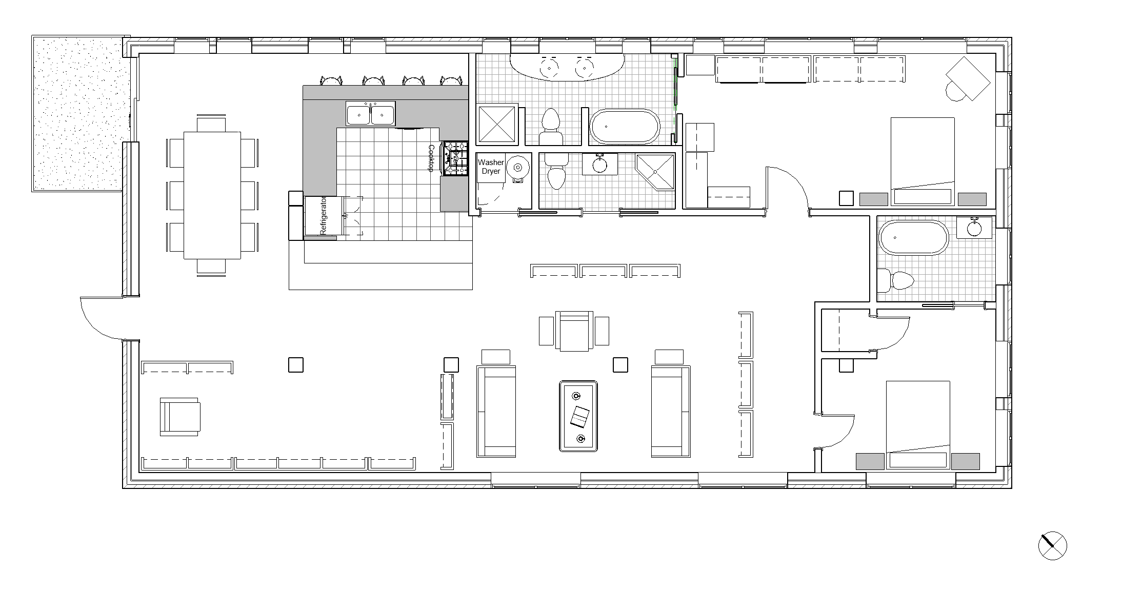
Project 1
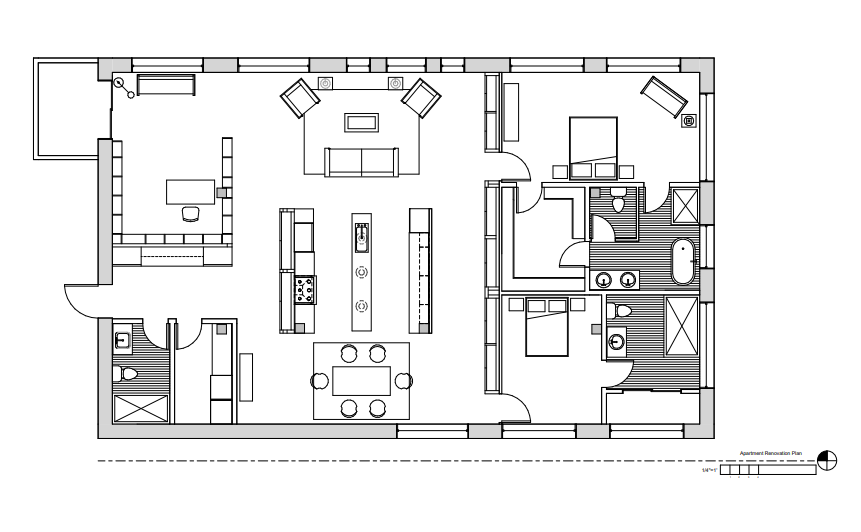
Project 2
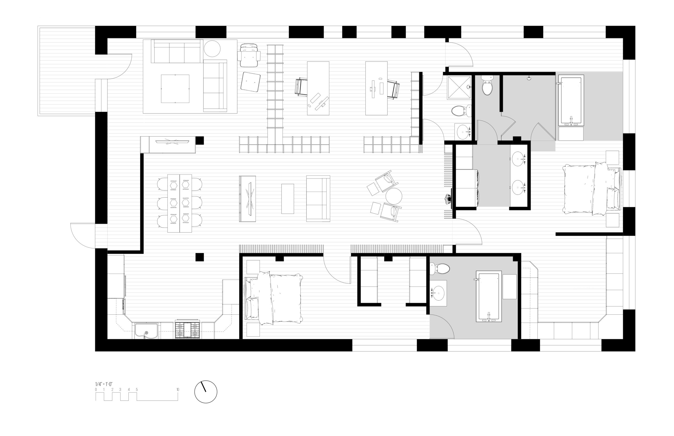
Project 3
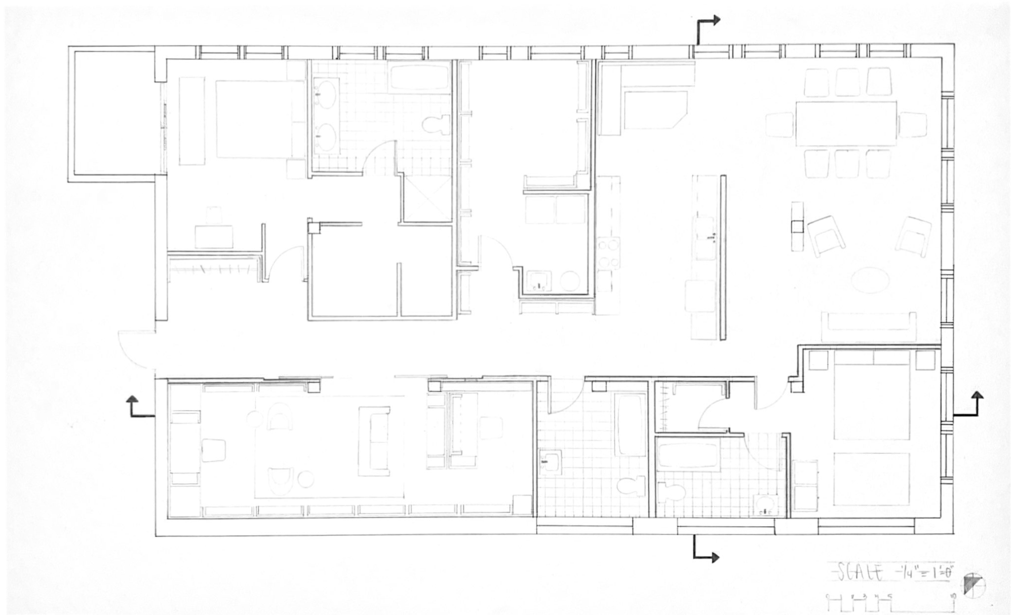
Project 4
Project 5
Project 6
Project 7
Project 8
Project 9
Project 10
Project 11
Project 12
Project 13
Project 14
Project 15
Project 16
Project 17
Project 18

Project 19
Project 20