
Structure and architecture. In any architecture school, structure classes are required by NAAB for accreditation. While talented faculty impart knowledge to students, it is my experience with several institutions that most of the structure classes focus on understanding key materials properties and ways to calculate structure. Class sessions are about imparting knowledge to make designs stable and safe, but rarely consider how architects think spatially about structure.
For me, this American academic environment undermines the architect’s responsibility to create a structure that not only provides a sound structural system, but as importantly for a young designer, is a way to emphasize the conceptual thinking needed to inform design decisions that underline a dialectic between space and structure.
Structure classes in Lausanne

I emphasize the latter statement as I reflect on my own education at the EPFL in the early 1980s. While we learned the essentials needed to design and estimate structural loads and how systems behave, including the need for sizing membranes, making material choices, and selecting appropriate connections, my first structures class introduced us to architecture precedence with an emphasis on understanding the duality between structure and space.
This distinctive approach to learning about structures was integrative and eye opening. Classes were taught by seasoned practicing engineers who acknowledged that they had architects and not engineers in the classroom. To integrate structural thinking from a spatial perspective was rehearsed during each session through key precedence studies from great masters. Not only were examples drawn from modernism and recent contemporary projects, but spanned across centuries.
If I am correct, the earliest examples we studied led us from the Greek, Roman, Romanesque and Gothic periods through subsequent art movement of the Renaissance with groundbreaking examples by Palladio, Alberti, Brunelleschi and Michelangelo, followed by the Baroque with Bernini, Bramante, and Borromini.

Jumping over the Rococo, Art Nouveau, and Neo-classicism, we gained a different appreciation as we moved from a masonry understanding of space and structure to those offered by new materials like cast iron, metal, and steel of the 19th century. This dramatic shift in materials led us to study bridges, train stations, and world exhibition halls (mostly in Great Britain) along with new building types such as skyscrapers in the United States.
These never-before-imagined spans, which resulted in new building types, were introduced to us, showcasing their structural lightness. This accompanied the formalization of engineering as an academic and professional discipline. Of course, this built upon the other major shift in structural engineering in the 17th century where empirical methods and rules of thumb were replaced by scientific calculations and mathematical theories.
During one of those classes, I remember being shown the famous Ironbridge (1779) at Coalbrookdale in Great Britain. What percolated in my mind from my introduction to this iconic bridge was that not only was iron capable of spanning in unconventional ways (in this case the River Severn), but that engineers at that time borrowed from timber framing details to assemble the bridge. It was a lesson for me that progress is not immediate, and cultural gestures need to be re-invented (Image 2).

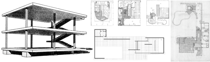
As students of architecture, when we arrived at the modern era of the 1920s, we knew that we had hit yet again another milestone, one that had changed forever the course of structure and space making. The free plan (as opposed to the paralyzed plan) with its conceptual Dom-ino diagram liberated architects from the structural constraints of load-bearing walls, and ushered architecture into the modern era. As we learned how this conceptual structural framework was interpreted by masters of the 20th century, we ended with Louis I. Kahn as he returned to Roman structural systems with his subtle 1960s reinvention of them at the Kimbell Art Museum. Here, in particular how the Roman vault becomes a modern cycloid (Image 4).
Of course, Nervi, Morandi, Maillard, Prouvé, and many other engineers held our attention as we struggled to think about our projects aspiring to equally innovative strategies. This introduction to structures was followed in subsequent semesters by the more traditional course, with the caveat that we now had an appreciation and appetite to learn more about how to think structurally.

Conclusion
In conclusion, the curriculum introduced us to structural systems prior to technical calculations and formulas, thus enabling students to focus on the reciprocal relationship between structure, form, material, and spatial quality. Retrospectively the instructor’s goal in these introductory sessions was to build a mental model of how structures work architecturally in three dimensions; a way to connect abstract principles to concrete real-world examples. The invaluable lesson was that structures were not an afterthought handled by an engineer, but an integral part of the architectural idea that serves both aesthetic and functional needs.

Of note, often this historical progression covered in our structure classes were mirrored in the history and theory lectures, which made our education seamless and pedagogically integrated between core design studio, and lecture classes.
Case in point, in our design theory course that mirrored one of our structural class sessions, we learned how Kahn’s thought AND built his famous quotes “Consider the momentous event in architecture when the wall parted and the column became.” See blog that describes four examples that pertain to this epiphany…